We can create most of our mantel surrounds in a full range of widths, heights, choice of colours and finishes.
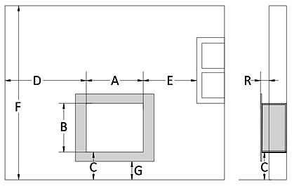
Please, use our Mantel Measurement Form below to capture the details of the wall upon which the mantel/overmantel will be placed.
This will allow us to recreate the situation in a dimensioned drawing and make sure your selection will fit appropriately.
If you want to send this information by fax, please download the
Mantel/Overmantel Measurement Worksheets 
(PDF file)
and fax it to
1-877-990-8636.